本篇文章内容由[中国幕墙网ALwindoor.com]编辑部整理发布:
摘要:本文对广东“三馆合一”幕墙工程进行介绍,重点针对直纹扭面陶板幕墙系统、玻璃采光顶及室内遮阳帘与拉网板系统、陶棍+玻璃双层幕墙系统、水泥耐力板系统等进行了分析,结合“三馆合一”项目特点阐述了陶板、陶棍、采光顶多面交接的构造形式及其实用性。
关键词:三馆合一;直纹扭面;陶板;采光顶;陶棍
广东省“三馆合一”项目(广东美术馆、广东非物质文化遗产展示中心、广东文学馆)正在如火如荼地建设中。这个全新的地标工程外形宛如一艘停泊在珠江岸边的轮船,建筑东西向长度为350米,建筑高度呈30米至80米叠级而上,寓意满载古今岭南文化艺术宝盒的巨轮即将扬帆起航。“三馆合一”项目由中国工程院院士何镜堂领衔的华南理工大学团队设计,而为项目八万余平幕墙“披外衣”的,则是幕墙行业老牌劲旅武汉凌云建筑装饰工程公司。
项目共有11大幕墙系统、22个子系统。除了常规的玻璃幕墙[1],另一大特色是大量采用白色的陶板、陶棍,且均覆盖着“冰裂纹”的釉面。陶瓷符合项目岭南文化属性,设计师在设计之初就考虑要放大这个文化元素。项目陶板面积超过 12000㎡,大大小小有12000块;5000多根陶棍,总长超过 18000米。其中陶板的尺寸有数千种,每块都对应4-6个不等的龙骨支撑安装点位,加之项目独特的造型和复杂的构造,仅是陶板的龙骨安装面上就分布了超过4万个的面材支撑固定点[2]。因此,如何准确安装幕墙成为设计和施工的重中之重。
现场还有幕墙上不多见的进口水泥耐力板[3],其分布面积近4000㎡。水泥耐力板安装上龙骨后,还需要4-5步工艺进行勾缝(词条“勾缝”由行业大百科提供)、刮腻子、上漆……简直让幕墙玩成了内饰精装修的活。
项目整体有超过10个不同区域的采光顶[4],采光顶的装饰线条都分别设计了独立的防水构造[5]。其中还有一个采光顶区域,因为设计的需求,显现出特有的“六面共点”的造型。在美术馆的部分,幕墙和采光顶合二为一,该区域的彩釉玻璃下方分布有电动遮阳帘和拉网板,其面积均超过6000㎡,建成后一定能让人近距离感受到现代建筑和岭南艺术叠加的氛围。“三馆合一”项目幕墙的看点还有很多,包括用大尺寸直板玻璃用现场冷弯封框成形的曲面效果、大面积高密度吊顶龙骨设计施工等,均是工程的看点和亮点!

图1项目临江面展示

图2幕墙系统分类
项目幕墙形式主要包括:P01高透竖明横隐玻璃幕墙系统、P02-1直纹扭面陶板幕墙系统、P02-2/3直纹扭面玻璃/采光顶系统、P02-4全玻幕墙系统、P03/06陶板幕墙系统(平板型、波浪型)、P04玻璃采光顶及室内遮阳帘与拉网板系统、P05陶棍+玻璃双层幕墙系统、P07连桥-竖明横隐玻璃幕墙/采光顶系统、P08大跨度竖明横隐玻璃幕墙系统(空中花园)、P09竖明横隐玻璃幕墙系统、P10-1~4室外雨蓬、屋顶格栅、吊顶蜂窝板(词条“蜂窝板”由行业大百科提供)系统、P10-5水泥耐力板系统、P12防火(词条“防火”由行业大百科提供)幕墙/防火采光顶系统。

图3幕墙系统分类

图4项目效果图展示
一、直纹扭面陶板幕墙系统
项目北临珠江,配套设有亲水平台和市民活动广场,直纹扭面陶板幕墙是该项目的亮点,包含大小直纹扭面两部分。其中大曲面东西跨度约22.8米,小曲面东西跨度约11米,采用板幅宽度500mm,厚度60mm的三种标准波浪型陶板截面沿着建筑曲面表皮排布,形成直纹扭面的外观效果,其中每间隔3米竖缝宽度为30mm,其余竖缝宽度为10mm。

图5项目西北视角展示

图6项目BIM模型展示

图7直纹扭面陶板及玻璃幕墙效果图

图8 60mm波浪型陶板标准板幅截面

图9 60mm波浪型陶板样品

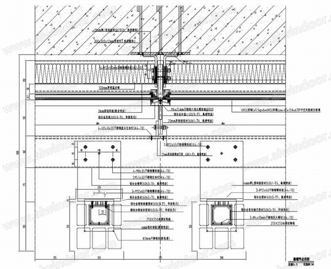
图10 直纹扭面陶板节点

图11 直纹扭面陶板节点效果图

图12 直纹扭面陶板节点爆炸图
曲面陶板系统采用4600多块规格为500mm×1600~2200mm的冰裂纹釉面陶板,实现直纹扭面的效果,通过BIM建模对曲面陶板系统进行分析,面板(词条“面板”由行业大百科提供)最大翘曲值为17mm;结合LOD400的模型对转接件、龙骨、陶板挂座等进行定位数据提取,挂点空间定位精度(词条“精度”由行业大百科提供)要求高。通过双曲变形幕墙陶板翘曲分析,确定了曲面幕墙直纹扭面处理方式,保证竖向分格缝位于同一平面,通过陶板背后挂件调节进出尺寸形成曲面渐变效果。


图13直纹扭面陶板BIM模型及翘曲值分析
设计方案能实现陶板的三维调节,对结构产生的偏差也能通过转接钢管定尺而消除,还能利用横龙骨连接角码可旋转角度的特性对翘曲值大的区域辅助调整,最后用挂座自身的齿垫设计进行微小数值范围地调节。

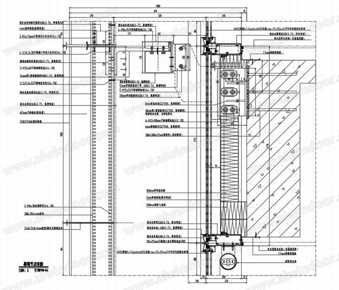
图14 横梁连接细部模型(左)及安装实拍(右)
施工团队采用全站仪进行精准测量定位,高空车等设备进行辅助安装,实现陶板顺滑过渡的扭面效果,曲面陶板在阳光映衬下创造出波光粼粼的绝美视觉效果。


图15 直纹扭面陶板安装过程展示
大曲面内侧竖向格栅造型,为陶板面内偏移的直纹扭面,采用50mm×250mm格栅型材间隔200mm布置,数量共有2111根格栅型材和2110条间隔铝型材。

图16 室内直纹扭面格栅节点图

图17 室内直纹扭面格栅模型
通过BIM建模分析格栅节点三维调节的尺寸范围,同时借助模型提取海量数据,支撑现场放线、定位、安装。


图18龙骨定位示意及局部放线数据

图19 室内直纹扭面格栅安装
大曲面上部为宽度1.5m,高度4.4m~10.5m的竖明横隐玻璃幕墙,玻璃面倾斜角度渐变,由东至西23°~90°渐变(玻璃面与水平面夹角),玻璃表皮为直纹曲面,纵向设有装饰线条,每根竖型材均有不同程度的扭转,最大玻璃尺寸为1.5m×10.5m,单块玻璃重达1.6吨,玻璃四点不共面,最大翘曲值为97mm,施工难度极大。正式施工前,结合力学分析对玻璃面板进行冷弯值试验验证,达到设计要求后[6],进行后续施工。现场采用特制电动吸盘,并配玻璃专用绑带进行保护,利用汽车吊将玻璃吊至安装点,同时辅以两台高空作业车将其就位安装,保证采光顶玻璃表皮过渡自然流畅,完美实现建筑效果。

图20 超大玻璃翘曲值分析

图21 超大玻璃受力分析

图22 超大玻璃施工措施模拟效果

图23 超大玻璃安装措施

图24超大玻璃安装过程实拍
二、玻璃采光顶及室内遮阳帘与拉网板系统
项目共有10个倾斜角度,主次龙骨夹角各异的采光顶系统,倾斜角度范围13.6°~77.1°,系统构造层次多样,由外至内面材依次为Low-E中空夹胶彩釉玻璃、电动遮阳帘、金属拉网板。采光顶内侧主体钢构(词条“钢构”由行业大百科提供)形式复杂,原方案要求对主体钢构进行铝板造型包饰,且铝板造型尺寸需结合各采光顶主钢构截面对应外偏一定数值,以满足室内“工”字型的外观效果;采光顶内侧距室内最大跨度达35米,工序复杂,施工难度极大。


图25 采光顶角度分析

图26 采光顶原方案效果图
项目团队通过实体视觉样板墙的对比展示,在建筑泰斗何镜堂院士莅临视觉样墙参观考察时,主动向其介绍讲解和说明,推动取消室内主体钢构包饰铝板造型,采用对主体钢构表面喷涂防火涂料后,进行刮腻子和表面氟碳漆喷涂处理,以达到类似原建筑效果造型要求,但尺度更为纤细的室内观感。此举可极大程度减少室内高空作业量,降低施工难度。

图27 采光顶内侧主体钢构包饰铝板与不包饰铝板的效果对比

图28采光顶内侧主体钢构表面喷涂后实拍

图29 采光顶主体钢结构

图30 采光顶安装效果模拟
采光顶玻璃分格模数为1.5m×3m,主体钢结构分格模数为3m×3m。主次铝合金龙骨借助主体钢构,结合BIM模型导出的定位数据进行安装。使用汽车吊、蜘蛛车和大规格的定制玻璃吸盘安装玻璃,室内侧辅以剪刀车和蜘蛛车对电动遮阳帘和金属拉网板进行安装。通过彩釉玻璃、遮阳帘及拉网板的组合,实现富有层次感的绝佳室内观感效果。

图31 采光顶龙骨放线点位


图32 采光顶主体钢结构及幕墙龙骨安装

图33 采光顶龙骨和玻璃安装
三、陶棍+玻璃双层幕墙系统
本项目塔楼采用截面尺寸250×250mm的多腔体冰裂纹釉面陶棍装饰,截面尺寸为国内目前最大,总长度达到18000米,规模形式罕见。内侧玻璃幕墙采用全明框形式,可实现玻璃从室内安装和更换[7]。

图34 陶棍截面


图35 节点效果图
陶棍组件单元为装配式,系统构造可实现三维调节,通过腔体内铝合金插芯进行组装限位,将4根长度约1米的陶棍组装成整体,组装精度需控制在1mm范围内。

图36 陶棍安装节点(1)

图37 陶棍安装节点(2)

图38 陶棍组件端部

图39 陶棍组件中间部位缝隙
使用汽车吊运至对应部位顺次挂装,通过陶棍端部铝封板与竖向插芯的插接配合,控制陶棍直线度,实现整体化一的外视效果[8]。


图40 陶棍组件吊装及安装实景
本项目采用陶板、陶棍体量大,供货周期紧张,设计前期与厂家进行全面地沟通和考察,解决厂家生产过程关于大截面陶棍和非标转角陶板的加工工艺难题,确保按时供货,保障现场工期。

图41 陶棍、转角陶板生产工艺

图42 转角陶板截面

图43 转角陶板生产现场
四、水泥耐力板系统
项目临江面水泥耐力板幕墙东西跨度达到220米,呈现直纹曲面造型,空间定位复杂,背面龙骨安装精度要求高,施工难度大。本系统面材采用12.5mm优质水泥耐力板,通过BIM技术提取钢龙骨关键控制点并将其转换为空间坐标,通过全站仪对控制点进行精确放样,保证龙骨安装准确;同时严把质量关,按照施工工艺标准对每道工序仔细检查,精准控制螺钉数量及间距,做好接缝衔接、抹面找平及面漆喷涂处理,确保表皮顺滑流畅,自然和谐。

图44 水泥耐力板龙骨安装

图45水泥耐力板面板安装
项目体量大,交界面众多,处理好交接点收口也是保障项目效果的关键。设计团队结合BIM模型,对交接部位逐一建模,完美还原各交接点施工效果。

图46 交接部位效果

图47项目交接面部位完成实拍

图48 项目北面展示
面对外立面造型极为复杂的广州“三馆合一”项目,武汉凌云的项目团队将幕墙工程细分成三个区十三个施工段,并采用“绝对坐标”及“网格相对距离”的方式,对幕墙安装测量放线进行双重控制。同时,充分利用了BIM(建筑信息模型)技术,进行项目双曲面、斜屋面幕墙分格点位坐标定位,再根据定位坐标放线。另外,还采用三维扫描技术,扫描形成幕墙骨架点云模型,并与理论模型对比,复核曲面、斜面幕墙钢结构龙骨安装精度,再进行材料加工生产,确保材料尺寸互相吻合、安装精确。

图49 项目南面展示
高标准才能造就高品质,“三馆合一”项目在建设过程中,业主、建筑师、总包、监理要求极高,针对幕墙施工有对应地管理手段和措施,现场验收程序严谨;幕墙工程质量要求标准高,不仅要达到验收合格标准,同时要确保整体工程获得“鲁班奖”,施工过程中项目还举办了多场省级和国家级的现场观摩会。可以预见,今年年底前,将有一个超高标准的示范工程,宛如一艘“文化巨轮”扬帆珠江,呈现在世人面前。
参考文献:
[1] JGJ 102-2003,《玻璃幕墙工程技术规范》,中国建筑工业出版社2004
[2] JG/T 324-2011,《建筑幕墙用陶板》,中国标准出版社2012
[3] JGJ 336-2016,《人造板材幕墙工程技术规范》, 中国建筑工业出版社2016
[4] JG/T 231-2018,《建筑玻璃采光顶技术要求》,中国标准出版社2018
[5] GB/T 34555-2017,《建筑采光顶气密(词条“气密”由行业大百科提供)、水密、抗风压性能检测方法》,中国标准出版社2017
[6] GB/T 18250-2015,《建筑幕墙层间变形性能分级及检测方法》,中国标准出版社2016
[7] GB/T 21086-2007,《建筑幕墙》,中国标准出版社2008
[8] GB 50429-2007,《铝合金(词条“合金”由行业大百科提供)结构设计规范》,中国计划出版社2008
作者单位:武汉凌云建筑装饰工程有限公司